기존의 전자 멀티보드 시스템 디자인은 서로 떨어진 채 연결되어 있지 않은 일련의 보드 프로젝트들로서 구현됐다. 이들을 한데 결합시키는 것은 비 EDA 기술로 정의된 내부적 관계와 아키텍처였다. 그러나 Xpedition은 논리적 시스템의 정의로부터 제조에 이르기까지 멀티보드 시스템 디자인을 최적화하도록 만들어졌다. Xpedition에 대해 보다 자세히 알아본다.
개요
개발 팀들은 보드 내 커넥티비티를 위해 대개 스프레드시트와 같은 데스크탑 오피스 툴을 사용하며, 시스템 요소의 파라미터에는 텍스트 파일을, 블록 레벨의 시스템 구조와 계층구조를 보여주기 위해서는 드로잉 애플리케이션을 사용한다. 이처럼 서로 단절되어 있는 접근방법의 문제점은 데이터를 여러 차례 재입력해야만 할 때가 많다는 것이다. 이는 서로 다른 분야와 영역 간에 표준적인 동기화 방법이 없었기 때문이다.
단절된 상태에서의 케이블/백플레인 인터커넥트 스키매틱 개발과 취약한 커넥터 관리 프로세스는 많은 기업들이 자신들의 설계 방법이 본질적으로 가질 수밖에 없는 취약성을 극복하기 위해 고가의 프로토타입을 구축하는 이유를 설명해 준다. 이는 커넥티비티의 오류를 수작업으로 바로잡거나 보드와 케이블을 수작업으로 동기화 하기 위해 시간과 자원에 많은 투자를 하는 등 상당한 노력을 요하게 된다.
오류 발생 위험을 최소화 하기 위해 제한적인 룰이나 명명 규칙을 시행해야 할 때도 많다.
대부분의 시스템 장애는 커넥터 핀의 자리 바뀜, 잘못된 커넥터 방향, 기계적인 비호환성 또는 잘못 결합된 커넥터 등의 잘못된 커넥티비티와 관련이 있다(그림 2). 이는 개발 팀들이 커넥티비티 기반의 멀티보드 시스템 디자인 솔루션을 사용한다면 일어나지도 않을 문제들이다.

▲ 그림 2. 논리적 시스템의 정의에서 단절되어 있는 툴들
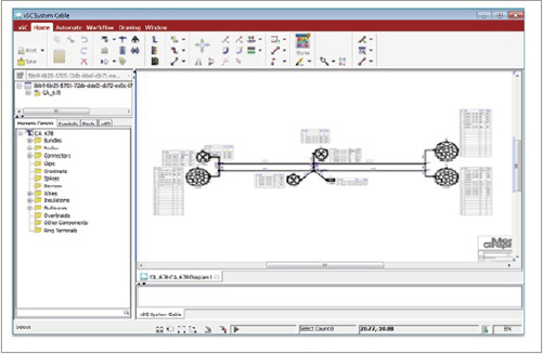
멘토그래픽스 Xpedition 멀티보드 시스템 디자인 솔루션(그림 1)은 PCB 설계 흐름을 전자 멀티보드 시스템 정의로 확장시켜 주는 자동화된 커넥티비티 및 자동 오류제거(correct-by-construction) 솔루션을 이용해 이러한 문제들을 해결한다. 이 솔루션은 혁신적인 모범사례 데이터와 커넥티비티 관리 능력을 시스템 정의 및 구현 흐름 전체에 적용한다. 이는 수작업을 크게 줄이고 시스템 구현을 요구 사양에 맞게 최적화 하는 데 더 많은 시간을 할애할 수 있게 해주는 한편, 전반적인 품질을 향상시키고 일정지연의 위험을 덜어준다. Xpediton의 시스템 설계 환경은 PCB 설계 흐름 및 특유의 WIP(work-in-progress) 설계 데이터 관리 허브와 통합됨으로써 멀티보드 시스템의 정의, 분할, 최적화 및 구현을 포함한 전체적인 시스템 설계로 확장된다. 덕분에 디자이너들은 하드웨어가 제작되기도 전에 오류를 잡아낼 수 있다. Xpedition은 PCB와 케이블 및 하니스 디자이너는 물론 그밖의 엔지니어들이 복잡한 멀티보드 시스템을 동시병행적으로 개발할 수 있는 독보적인 환경을 제공한다.

▲ 그림 1. 멀티보드 시스템 디자인 Xpedition
Xpedition의 주요 이점
• 전자 멀티보드 시스템의 논리적 정의를 설계, 분할, 저작 및 문서화 하기 위한 단일 데스크탑 엔지니어링 환경
• 멀티보드 시스템 디자인의 동기화 관리로 인터페이스를 줄이고, 수작업에 의한 데이터 취급, 데이터 중복 및 ECO 전달 오류를 없앨 수 있음
• 통합 커넥터 관리를 통해 초기의 설계 구상으로부터 전체 설계 주기에 이르기까지, PCB 프로젝트와 설계에 의한 구매 부품을 포함해 커넥티비티 결합 오류를 없애 줌
• 통합 멀티보드 시스템 레벨의 커넥티비티 검증
• 멀티보드 시스템 보드와 케이블 간의 제어된 동기화를 통한 내장 변경 관리 기능
• 분할된 기능과 관련 보드에 배정된 엔지니어와 구현 팀들을 위한 협력적이고 동시 병행적인 설계 환경이 데이터 무결성과 커넥티비티를 자동적으로 관리함
• 직관적인 시스템 레벨의 부품 조사, 선택 및 관리를 위한 통합 라이브러리 검색 기능
• Microsoft? Visio 데이터를 임포트해 시스템 디자인에 내장하고 특징들을 시스템 요소에 부착함으로써 기존의 아키텍처 IP를 이용함
시스템 설계의 자동화
Xpedition을 통해 프로젝트 설계자는 하드웨어 기술내용을 와이어, 케이블 및 백플레인의 논리적 정의를 포함하는 논리/PCB 레벨에 이르기까지 논리적 시스템 레벨에서 정의 및 캡처할 수 있다(그림 3).

▲ 그림 3. 강력하고 완전히 개인화된 사용자 인터페이스
주로 전체적인 시스템 커넥티비티를 캡처하기 위한 조종실(cockpit)은 설계 검증 및 요건 추적과 같은 다른 영역들로까지 확장된다. 데이터 관리 백본과의 통합은 수많은 개별 프로젝트 구성요소들의 복잡한 개발 프로세스를 안전하게 관리하기 위한 포괄적인 인프라를 제공한다. 이는 개정사항 관리, 액세스 제어 및 해제, 그리고 단일 보드 및 케이블 디자인을 비롯한 진행 중인 시스템 설계 데이터의 정보 관리를 통해 이루어진다.
시스템 정의
시스템 정의 능력을 통해 시스템 디자이너는 시스템 엔지니어의 설계 의도를 시각화 및 구현하고, 시스템 전체에 걸쳐 최적의 기능 위치와 인터커넥티비티를 생성할 수 있다. 시스템 정의의 핵심 요소는 논리적 보드이다. 디자이너는 단지 시스템 레벨의 블록과 온보드 커넥터들을 그룹화 하는 것만으로 논리적 시스템 뷰 레벨에서 논리적 보드를 정의한다(그림 4 참조). 이 프로세스는 간단하고 매우 직관적이다. 디자이너는 단순히 시스템 레벨의 블록을 이용해 시스템 기능을 분할하는데, 이 블록은 PCB 설계 후반에서 일반 계층적 블록의 역할을 하게 된다. 디자이너는 시스템 레벨의 블록을 로컬에서 생성하여 기업 라이브러리로부터 배치하거나 혹은 기존의 PCB 설계 부분들을 재사용할 수 있다(그림 5 참조).

▲ 그림 4. 필요하고 가능할 경우에는 커넥터 결합 기능을 사용할 수 있다

▲ 그림 5. 논리적 보드에는 시스템 레벨의 블록과 보드 내 커넥티비티가 포함된다
커넥터 관리
이 툴은 커넥터 확장 기능으로 파라미터화된 커넥터(IEC 규격을 따르는)를 즉석에서 생성하고(그림 6), 간단한 확장(stretch) 명령을 이용해 핀 번호를 수정해 주므로 커넥터를 추가하고 조작 및 갱신하기 위한 노력이 최소화 된다. 고도의 자동화 수준 덕분에 디자이너는 커넥터의 실제적인 물리적 세부사항에 신경 쓸 필요 없이 일반 커넥터를 이용해 커넥티비티를 생성하고 수정할 수 있다.

▲ 그림 6. 파라미터화 된 일반 커넥터가 즉석에서 생성된다
커넥터 관리 기능은 ‘CBD(correct by design)’ 접근방법을 시행함으로써 전체 시스템 설계 주기 중 언제라도 연결 오류를 미리 제거하며, 커넥터의 자동 결합 및 핀 페어링을 제공한다. 커넥터는 다음 기능들을 통해 지능적으로 관리된다.
• 물리적 PCB와 케이블 구현물 및 시스템 설계 데이터 간의 동기화
• 결합 가능 커넥터의 자동 선택 및 할당
보드 인텔리전스 - 시스템 최적화
보드 간의 커넥티비티가 시스템 레벨과 이에 상응하는 관련 PCB 프로젝트에서 정의된 대로 변경된 후에 디자이너는 두 정의를 쌍방향으로 동기화할 수 있다. 이는 유연성 있는 구현을 가능케 해준다.
예를 들어, 새로운 기계적 제약사항으로 인해 보드 정의를 논리적 시스템 뷰 레벨에서 수정할 필요가 있다. 이는 시스템 레벨의 블록들을 논리적 보드들 간에 드래그 함으로써 손쉽게 달성할 수 있다. 객체들이 논리적 보드들 사이를 이동함에 따라 커넥티비티는 자동적으로 갱신된다. 커넥터가 자동적으로 삽입되며, 필요한 연결은 즉석에서 생성되어 네트와 와이어 사이에서 변형된다. 하지만 디자이너는 생각이 바뀌면 언제라도 블록을 원래의 위치로 되돌려 놓을 수 있으며, 커넥티비티는 자동적으로 갱신된다. 요건의 변경은 전체적인 시스템 설계를 위태롭게 하는 일 없이 신속하고도 매끄럽게 수용된다.
고도로 자동화된 인터커넥티비티 및 커넥티비티 검증
Xpedition은 시스템 요소들 간의 연결 생성 프로세스를 자동화 하는데, 여기에는 다수의 네트와 와이어들의 연결 순서와 와이어링이 포함된다. 생산성 증대를 위해 이 툴은 다수의 핀들을 한 번에 연결할 수 있는 기능을 제공한다.
디자이너는 신호 트레이스 출력으로부터 손쉽게 크로스 프로빙 함으로써 해당 신호 경로에 속하는 특정 객체를 찾아내 선택할 수 있다. 예를 들어, 디자이너는 특정 커넥터 핀에 연결되어 있는 네트를 찾아낼 수 있다. 커넥티비티 검증 기능은 해당 커넥티비티가 정확히 디자이너가 원하는 대로인지 확인해 준다. 신호 트레이스 기능은 결합된 커넥터 쌍과 페어링 된 핀들, 심지어는 다른 시트에 위치한 객체들을 통해서도 신호를 추적할 수 있다. 컬러 코딩과 하이라이팅 기능은 디자이너가 커넥티비티를 시스템 전체에 걸쳐 손쉽게 추적할 수 있게 해준다.
멀티 PCB와 케이블의 통합
디자이너가 시스템 레벨에서 논리적 보드와 PCB 디자인 간의 연계를 생성한 뒤에는 시스템 디자이너가 쌍방향 프로세스를 이용해 논리적 보드와 관련 PCB 스키매틱의 콘텐츠 동기화에 착수할 수 있다. 동기화 어시스턴트는 변경 목록, 논리적 보드의 정의에 대한 프리뷰, 그리고 특정 객체들의 동기화 상태를 명확히 알려주는 컬러 코딩을 제공한다.
이 윈도우는 문제 해결을 돕고 새로운 사용자들에게 유용한 정보를 제공하기 위한 다수의 팁들을 제공한다. PCB 스키매틱은 관련 논리적 보드와 동기화 되어 있으므로 커넥터는 물론 사실상 계층적 블록인 시스템 레벨의 블록들도 포함하고 있다. 따라서 보드 디자이너들은 이러한 블록 내부의 스키매틱에 로직을 정의함으로써 시스템의 각 특정 기능을 실현할 수 있다(그림 7).

▲ 그림 7. 멀티 보드 시스템 프로젝트
동기화 프로세스는 자동적이 아니라 담당 디자이너만이 동기화 작업을 실행할 수 있도록 제어되고 잘 관리된다. 소프트웨어는 보드와 그 콘텐츠 간의 변경사항, 보드들 간의 커넥티비티 그리고 커넥터들 간의 핀투핀 관계를 추적한다(그림 8 참조).

▲ 그림 8. 신호 경로는 다수의 보드와 커넥터들에 걸쳐 추적된다
통합 케이블 설계
일부 멀티보드 시스템에서는 보드와 다른 시스템 구성요소들(센서와 같은) 간의 상호연결이 케이블링에 의해 구현된다.
논리적 시스템 커넥티비티는 단순하게 여러 케이블로 분할될 수 있다. 각각의 논리적 케이블은 물리적인 표현물을 필요로 한다. 이 툴은 부품 선택을 자동화 하기 위한 다양한 기능들을 갖추고 있다.
이러한 자동화는 와이어, 멀티코어, 단자, 테이프, 그리고 BOM(bill of materials)과 제조 도면을 비롯해 제조준비가 된 케이블 디자인을 위한 다른 모든 케이블 부품들을 자동적으로 추가함으로써 이루어진다. 수량(예컨대 제조되는 와이어의 ‘진짜’ 길이)의 자동 계산 기능은 자동 오류 제거된 케이블을 보장해 준다.
ECAD와 MCAD 환경 간의 긴밀한 통합은 효율적인 시스템 설계 프로세스에 있어서 필수적이다. 기계설계 디자이너와 케이블 디자이너는 서로의 디자인에 영향을 미치는 중요한 설계상의 결정사항들을 교환함으로써 서로 협력할 수 있다.
시스템 설계의 재사용
대체로 디자이너들은 함께 유지되어야 하는 문서들을 특정한 시스템 설계 요소들과 연관시켜왔다. Xpedition 멀티보드 시스템 설계 솔루션은 디자이너들이 추가적인 정보를 명시하고 시스템 레벨의 블록과 같은 시스템 객체들에 보다 많은 세부사항들을 추가할 수 있도록 해준다. 이 기능의 이점은 데이터를 온전한 상태로 디자이너들이 손쉽게 이용할 수 있는 곳에 유지해준다는 것이다. 이는 역동적으로 변화하는 환경에서도 마찬가지이다.
디자이너들은 Microsoft Visio 데이터를 시스템 디자인으로 임포트해 내장시킴으로써 기존의 IP를 이용할 수도 있다. 이러한 기능은 Visio 객체를 일반적인 Xpedition 시스템 설계 객체로 변환시킴으로써 단순한 객체의 연결 및 내장 기능 이상으로 확장된다.
협력적이고 동시병행적인 설계
Xpedition과 이 솔루션의 WIP 설계관리 허브는 엔지니어링 협력을 새로운 차원으로 끌어올린다. 멀티보드 시스템 디자인은 수많은 분야들이 관여되는 업무 프로세스이다. Xpedition은 단지 이 분야들 간에 핵심 데이터를 건네주는 것만으로 이들을 통합시킨다(그림 9 참조). 이 툴은 한 분야의 요소들이 다른 분야의 요소들에 얼마나 의존하고 있는지 알고 있으므로 의존성 요소가 변경될 경우 이를 알려준다.

▲ 그림 9. 다수의 PCB와 관련 케이블을 위한 완전통합 된 설계 프로세스
또한 설계 데이터를 데스크탑으로부터 해방시키며, 제어되고 통합된 데이터 저장 기능을 제공한다. Xpedition 멀티보드 시스템 디자인 솔루션은 전 분야간 협력을 위한 클라이언트를 제공하는데, 이것은 버전관리 되는 통합 데이터에 통지, 크로스 프로빙, 마크업 및 코멘트 기능을 이용해 작업한다. 이 솔루션은 일관성 있고 통합된 설계 프로세스 관리 기능을 제공한다(그림 10 참조). 그 지원 사항은 다음과 같다.

▲ 그림 10. 고도의 맞춤화가 가능한 케이블 제조 도면
• 흐름 전반에 걸친 통합된 설계 데이터 동기화 프로세스
• WIP 설계관리 허브를 통해 관리되는 동기화. 시스템, PCB와 케이블 레벨 및 툴 간의 익숙한 쌍방향적 순방향/역방향 주석 프로세스를 이용한다
• 스키매틱과 보드 레이아웃 간의 전통적인 동기화 프로세스와 완전히 동일한 메커니즘
• 표준 EDX I/F를 통해 이루어지는, PLM과 3rd Party에 대한 제어된 데이터 액세스
한국멘토그래픽스





